|
中古戸建
[価格]
1,600万円
|
||||
|---|---|---|---|---|
| 所在地 | 沿線/駅 バス徒歩 |
構造 間取 |
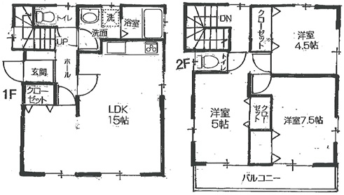
土地面積 建物面積 |
築年月 引渡時期 |
| 鶴ヶ島市大字脚折 | 東武東上線/若葉駅 徒歩28分 |
木造 3LDK |
107.66m² 79.69m² |
2008/10 相談 |

| 物件番号 | 12363 | ||
|---|---|---|---|
| 交通 | 東武東上線 若葉駅まで 徒歩28分 | 学区 | 鶴ヶ島市立鶴ヶ島第一小学校 190m 鶴ヶ島市立鶴ヶ島中学校 500m |
| 建ぺい率 | 60% | 容積率 | 200% |
| 地目 | 宅地 | 用途地域 | 第一種中高層住居専用地域 |
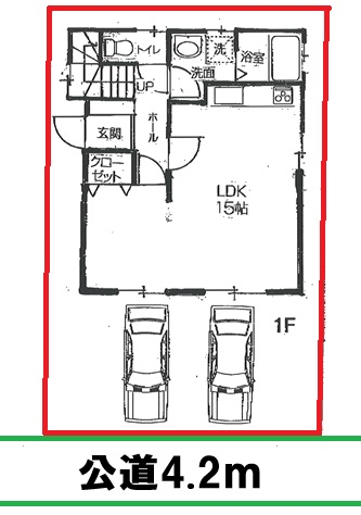
| 間取詳細 | (1F)LDK15.0、(2F)洋4.5、(2F)洋5.0、(2F)洋7.5 | 取引態様 | 仲介 |
| 土地権利 | 所有権 | 借地料 | - |
| 諸費用 | 私道面積 | - | |
| 接道 | 南東 4.2m(幅員) 公道 | セットバック | |
| 特色 | 駐車場、南道路、公営水道、公共本下水、プロパンガス、空家、契約不適合責任免責、付帯設備責任免責、現況渡し | ||
| 取引条件有効期限 | 2026年02月13日 | ||
|
地図を右クリックでルート検索が可能です。
|